
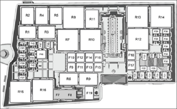
Vị trí hộp cầu chì trên xe ô tô, ký hiệu các cầu chì trên xe ô tô
Vị trí hộp cầu chì trên xe ô tô
Có 3 vị trí đặt hộp cầu chì/nối điện trên xe.
Hộp cầu chì trong khoang động cơ
Hộp cầu chì khoang động cơ được đặt bên tay trái phía sau đèn đầu.

Hộp cầu chì khoang hành khách
Hộp cầu chì khoang hành khách được đặt ở khoang để chân của tài xế bên dưới cột tay lái

Hộp cầu chì khoang hành lý
Hộp cầu chì khoang hành lý được đặt bên trong nắp đậy phía bên tay trái của khoang hành lý

Ký hiệu cầu chì Toyota Innova, Kia Morning
Ký hiệu hộp cầu chì trong khoang động cơ

|
Số cầu chì |
A |
Mô tả |
|
7 |
40 |
Bơm hệ thống phanh ABS, bơm ESP |
|
8 |
30 |
Van của hệ thống ESP |
|
9 |
30 |
Sưởi kính sau |
|
10 |
40 |
Quạt dàn lạnh |
|
11 |
30 |
Hộp điều khiển chức năng Khởi động-tắt máy (Start-stop) |
|
12 |
30 |
Rơ-le hệ thống điều khiển động cơ, tuần hoàn khí xả EGR |
|
13 |
30 |
Rơ-le đề |
|
15 |
25 |
Động cơ Eco Boost (Fox) |
|
16 |
40 |
Sưởi kính chắn gió (tay lái thuận) |
|
17 |
20 |
Sưởi hoạt động bằng nhiên liệu |
|
18 |
20 |
Gạt mưa |
|
19 |
5 |
Hộp điều khiển hệ thống phanh ABS và ESP |
|
20 |
15 |
Còi |
|
21 |
5 |
Công tắc đèn phanh |
|
22 |
15 |
Hệ thống theo dõi ắc-quy |
|
23 |
5 |
Rơ-le cuộn dây, mô-đun công tắc điều khiển hệ thống đèn. |
|
24 |
20 |
Ổ cắm nguồn phụ phía sau |
|
25 |
10 |
Kính chiếu hậu điều khiển điện |
|
26 |
15 |
Hộp điều khiển hộp số tự động (TCM) |
|
27 |
15 |
Ly hợp lốc điều hòa |
|
28 |
5 |
Hệ thống điều khiển ga tự động thích ứng (ACC) |
|
29 |
20 |
Bơm rửa đèn đầu |
|
30 |
5 |
PCM |
|
Số cầu chì |
A |
Mô tả |
|
32 |
10 |
Van EGR, van xoay lốc khí nạp, sưởi cảm biến oxy (điều khiển động cơ), rơ-le hộp điều khiển quạt điện. |
|
33 |
10 |
Các bô-bin hệ thống đánh lửa |
|
34 |
10 |
Kim phun, rơ-le bay hơi nhiên liệu, van hộp than hoạt tính (động cơ xăng), bơm nước |
|
35 |
5 |
Rơ-le, rơ-le quạt két làm mát khí nạp |
|
36 |
10 |
PCM |
|
38 |
15 |
PCM, TCM |
|
39 |
5 |
Hộp điều khiển đèn đầu (đèn halogen chỉnh góc chiếu) |
|
40 |
5 |
Hệ thống trợ lực lái điều khiển bằng điện |
|
41 |
20 |
Hộp điều khiển điện thân xe (GEM = Body control module) |
|
42 |
15 |
Gạt mưa sau |
|
43 |
15 |
Hộp điều khiển đèn đầu (chỉnh gốc chiếu của đèn có độ phát sáng cao), cụm đèn trước có góc sáng chiếu thích ứng. |
|
44 |
5 |
Hệ thống ga tự động thích ứng (ACC) |
|
45 |
10 |
Vòi phun hệ thống sưởi |
|
46 |
25 |
Kính cửa sổ điều khiển điện (trước) |
|
47 |
7.5 |
Sưởi kính chiếu hậu bên ngoài |
|
48 |
15 |
Bộ bay hơi |
Ký hiệu hộp cầu chì khoang hành khách

|
Số cầu chì |
A |
Mô tả |
|
56 |
20 |
Nguồn cung cấp bơm xăng |
|
59 |
5 |
Nguồn cung cấp hệ thống chống trộm |
|
60 |
10 |
Công tắc cửa lái, hộp găng tay (cốp tay), đèn soi trong xe, cửa sổ trời. |
|
61 |
20 |
Mồi thuốc lá, ổ cắm nguồn phụ phía sau |
|
62 |
5 |
Hộp điều khiển cảm biến gạt mưa, cảm biến độ ẩm, kính chiếu hậu chống chói tự động |
|
63 |
10 |
Ga tự động thích ứng (ACC) |
|
65 |
10 |
Nắp đậy khoang hành lý |
|
66 |
20 |
Cụm khóa bên tài xế, khóa kép |
|
67 |
7.5 |
Màn hình thông tin, GPS, điều khiển điện thoại bằng giọng nói qua blutooth |
|
68 |
15 |
Khóa trụ lái bằng điện |
|
69 |
5 |
Bảng táp-lô |
|
70 |
20 |
Khóa trung tâm |
|
71 |
10 |
Hệ thống điều hòa |
|
72 |
7.5 |
Hộp điều khiển tay lái |
|
73 |
5 |
Chuông báo dự phòng ắc-quy, hệ thống chẩn đoán hư hỏng |
|
74 |
15 |
Đèn pha (chiếu xa) |
|
75 |
15 |
Đèn sương mù |
|
76 |
10 |
Đèn lùi |
|
77 |
20 |
Bơm nước rửa |
|
78 |
5 |
Khóa điện hoặc nút khởi động |
|
79 |
15 |
Hệ thống âm thanh, đèn chớp ứu tiên và nút khóa cửa |
|
80 |
20 |
Cửa sổ trời |
|
81 |
5 |
Cảm biến dịch chuyển bên trong, bộ thu sóng radio |
|
82 |
20 |
Mát bơm nước rửa |
|
83 |
20 |
Mát khóa cửa trung tâm |
|
84 |
20 |
Mát khóa cửa kép và mở khóa cửa tài xế |
|
85 |
7.5 |
Hệ thống điều hòa, công tắc sưởi ghế |
|
86 |
10 |
Hệ thống túi khí, hủy kích hoạt túi khí hành khách |
Ký hiệu hộp cầu chì khoang hành lý

|
Số cầu chì |
A |
Mô tả |
|
2 |
10 |
Hộp điều khiển hệ thống không dùng chìa (Keyless vehicle) |
|
3 |
5 |
Tay mở cửa hệ thống không dùng chìa |
|
4 |
25 |
khóa, gập gương điện, sưởi kính chiếu hậu bên ngoài) |
|
5 |
25 |
Hộp điều khiển cửa (cửa trước phải) (kính điều khiển điện, khóa cửa trung tâm, gập gương điện, sưởi kính chiếu hậu) |
|
6 |
25 |
Hộp điều khiển cửa (cửa sau trái) (kính điều khiển điện) |
|
7 |
25 |
Hộp điều khiển cửa (cửa sau phải) (kính điều khiển điện) |
|
8 |
10 |
Hệ thống báo trộm |
|
9 |
25 |
Ghế tài xế điều khiển điện |
|
11 |
25 |
Ghế hành khách điều khiển điện - 2.0L Eco Boost - MI4 |
|
12 |
10 |
Hộp điều khiển điều hòa (với hộp điều khiển khởi động-dừng xe start-stop) |
|
13 |
5 |
Bảng táp-lô (với hộp điều khiển khởi động-dừng xe start-stop) |
|
14 |
7.5 |
Màn hình Thông tin và Giải trí, hộp điều khiển GPS (với hộp điều khiển khởi động-dừng xe start-stop) |
|
15 |
15 |
Hệ thống âm thanh, bảng điều khiển đài (với hộp điều khiển khởi động-dừng xe start-stop) |
|
26 |
40 |
Bộ điều khiển rờ-móc |
|
29 |
5 |
Theo dõi điểm mù, trợ giúp giữ làn đường, dừng xe chủ động trong thành phố, camera phía sau (với hộp điều khiển khởi động-dừng xe start-stop) |
|
30 |
5 |
Hộp điều khiển hỗ trợ lùi xe |
|
34 |
15 |
Sưởi ghế tài xế |
|
35 |
15 |
Sưởi ghế hành khách phía trước |
|
37 |
5 |
Cửa sổ trời |
|
41 |
5 |
Đầu móc nối với rờ-mócl |
|
46 |
10 |
Theo dõi điểm mù, trợ giúp giữ làn đường, camera phía sau (với hộp điều khiển khởi động-dừng xe start-stop) |
Tin tức nổi bật
Chênh lệch giá vàng trong nước và thế giới 14/4/2026
Cách quy đổi giá vàng thế giới
Vàng miếng, vàng thỏi, vàng nguyên liệu là gì?
Giá vàng, bạc áp lực giảm do lo ngại lạm phát (theo kitco.com)
So sánh giá vàng Sjc, Doji, Pnj, Phú Quý hôm nay